Działka budowlana Rościęcino gm. Kołobrzeg
Rościęcino gm. Kołobrzeg Pokaż na mapie ›
Odświeżone: Czwartek, 04 Grudzień, 2025 11:23
2 600 000 zł
289 zł/m2
Szczegóły ogłoszenia
- Kategoria: Działki i grunty / Sprzedaż
- Pow. działki:8995 m2
- Rodzaj działki:Budowlana
- Sprzedaż:Pośrednik
- Cena: 2 600 000 zł / 289 zł/m2
Opis oferty
DZIAŁKA USŁUGOWO-BUDOWLANApod lokalizacje magazynów, hal, budynków o charakterze rzemieślniczym, warsztaty, salony sprzedaży;
zlokalizowana w Rościęcinie koło Kołobrzegu z
wjazdem na działkę bezpośrednio ze "ślimaka " drogi ekspresowej S6 Szczecin- Gdańsk
Działka o pow. 8.995 m
Media:
działka uzbrojona
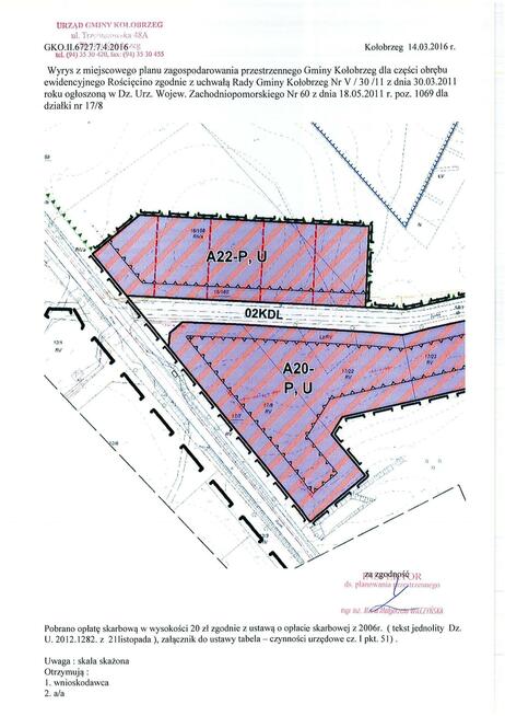
Działka o funkcji A20 P,U w planie zagospodarowania przestrzennego gminy przeznaczona jest pod:
- tereny składów i magazynów,
- teren zabudowy usługowej o charakterze rzemieślniczym, warsztaty, salony sprzedaży.
Cena 2,6 mln netto zł plus 23 % VAT
Dokładny wypis z planu zagospodarowania
Dla terenu funkcjonalnego oznaczonego na rysunku planu miejscowego symbolem A20-P, U o pow. 2,8030 ha obowiązują następujące ustalenia:
przeznaczenie terenu:
przeznaczenie podstawowe teren składów i magazynów;
teren zabudowy usługowej o charakterze rzemieślniczym, warsztaty, salony sprzedaży;
b) przeznaczenie uzupełniające niezbędna infrastruktura techniczna i komunikacyjna;
2) zasady zagospodarowania terenu:
od strony drogi wojewódzkiej i gminnej wyeksponować architekturę i elewacje budynków usługowych i administracyjnych oraz wprowadzić zieleń;
zabudowa składów, magazynów i gospodarcza w głębi działki;
korekta granicy działki narożnej w celu realizacji skrzyżowania drogi gminnej z drogą wojewódzką zgodnie z ustaleniami planu miejscowego;
parametry i wskaźniki kształtowania zabudowy oraz zagospodarowania terenu:
linie zabudowy nieprzekraczalne zgodnie z rysunkiem planu miejscowego 15,0 m od linii rozgraniczającej drogi 01KDG i 7,5 m od linii rozgraniczającej drogi gminnej,
od granicy lasu 15,0 m;
maksymalna powierzchnia zabudowy w stosunku do powierzchni działki 40 %;
minimalna powierzchnia terenu biologicznie czynna w stosunku do powierzchni działki - 25%;
wysokość zabudowy, geometria dachu:
zabudowa administracyjna i usługowa do 7,0 m dla dachów płaskich i 10,0 m dla dachów stromych;
zabudowa pozostała do 10,0 m dla dachów płaskich i 12,0 m dla dachów stromych;
dachy płaskie do 15 lub strome o pochyleniu połaci dachowych od 30 do 50;
dla dachów stromych pokrycie w kolorze brązowym, wiśniowym lub ceglastym; )
zasady ochrony środowiska i przyrody nie występują;
zasady ochrony dziedzictwa kulturowego i zabytków nie występują;
zasady ochrony według przepisów odrębnych:
obowiązują dopuszczalne poziomy hałasu w środowisku określone w przepisach odrębnych dla terenów przemysłowych;
uciążliwość nie może przekroczyć granic działki;
zasady i warunki scalania i podziału nieruchomości minimalna powierzchnia działki - 0,40 ha,
minimalna szerokość frontu działki - 40,0 m;
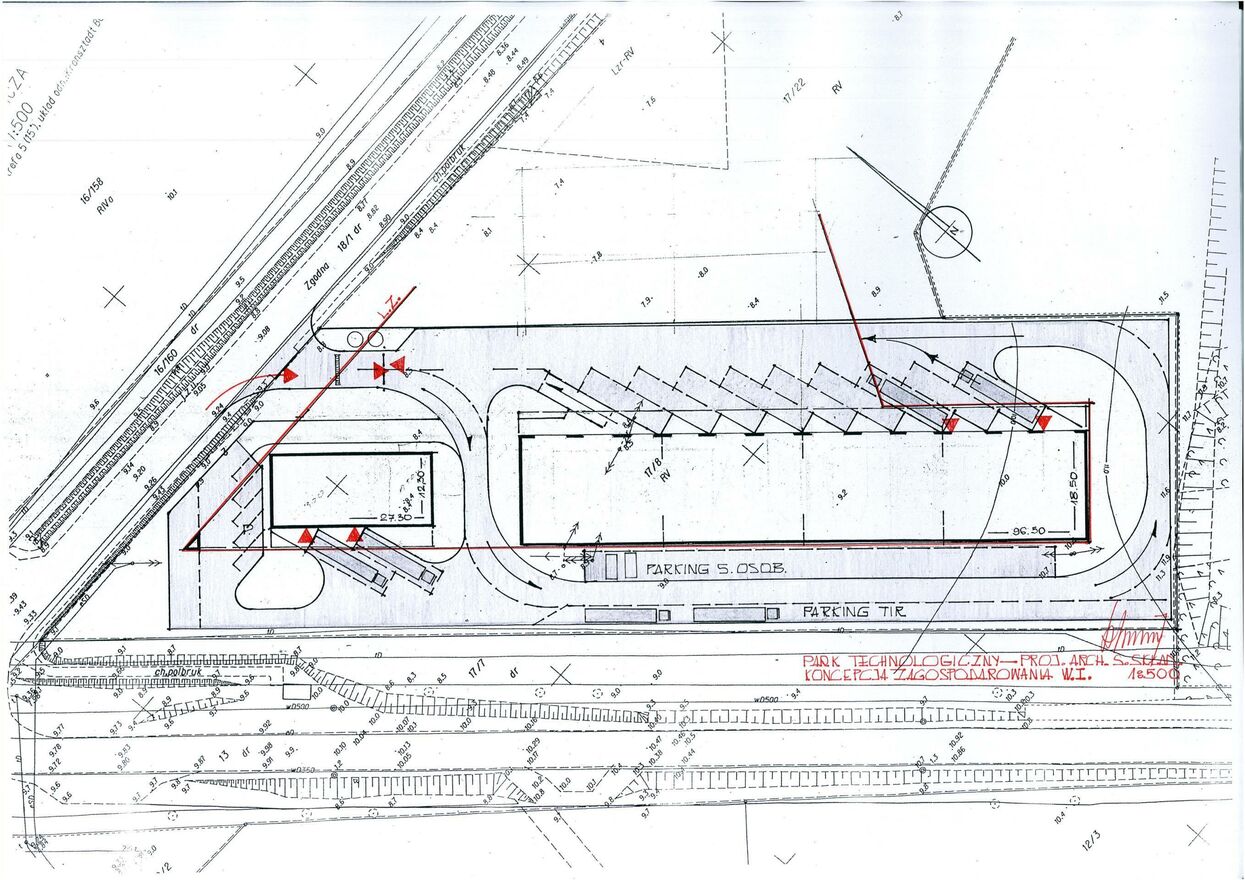
zasady obsługi komunikacyjnej:
obsługa komunikacyjna poszczególnych działek z drogi gminnej;
zaprojektować stanowiska postojowe samochodów w obrębie działki; ilość stanowisk musi wynikać z przyjętego natężenia ruchu samochodowego (ilości klientów przyjeżdżających samochodami);
zasady obsługi w infrastrukturę techniczną:
zaopatrzenie we wszystkie media infrastruktury technicznej z sieci ogólnych zgodnie z warunkami ogólnymi zawartymi w 16 ustaleń planu miejscowego.
Zakazuje się stosowania lokalnych rozwiązań za wyjątkiem ogrzewania i zaopatrzenia w wodę a wynikającego z przepisów odrębnych oraz ze względów technologicznych ;
w obrębie terenów parkingowych i zieleni niskiej dopuszcza się lokalizację urządzeń infrastruktury technicznej przepompowni, trafostacji, stacji redukcyjnej, urządzeń infrastruktury telekomunikacyjnej itp.;
ustalenia dotyczące stawek procentowych ustala się stawkę służącą naliczaniu jednorazowej opłaty z tytułu wzrostu wartości nieruchomości, o której mowa w art. 36 ust. 4 ustawy o planowaniu i zagospodarowaniu przestrzennym w wysokości 0,0%.
Przedstawione informacje nie stanowią oferty w rozumieniu przepisów Kodeksu Cywilnego. Dane dotyczące nieruchomości oparte są na informacjach uzyskanych od właściciela nieruchomości i mogą różnic się od stanu faktycznego. Podane ceny i czynsze mogą ulec zmianie. Zalecamy osobiste zapoznanie się ze stanem nieruchomości. Zapraszamy !
Oferta wysłana z programu IMO dla biur nieruchomości
Numer oferty: 21513
Sprawdź zainteresowanie tym ogłoszeniem
Wyświetlenia
Data dodania
Ostatnio widziany
Obserwujących
Wysłane zapytania
Odsłony telefonu
- Wypromuj ogłoszenie
- Zgłoś naruszenie
- Drukuj ulotkę
- Edytuj/usuń ogłoszenie
- Udostępnij ogłoszenie
- Dodaj na Facebook

















